Vai ai contenuti
Vai al footer
Regione Toscana
Lingua attiva:
ITA
ITA
selezionata
ENG
Accedi all'area personale
Comune di Arezzo
Seguici su
Cerca
Nascondi la navigazione
Comune di Arezzo
Amministrazione
Novità
Servizi
Vivere il Comune
Ambiente
Educazione
Sportello Unico
Tutti gli argomenti
Seguici su
Home
/
Bandi, gare e concorsi
/
Avviso pubblico per la concessione in uso di n° 8 immobili di proprietà comunale destinati ad attività commerciale posti in Arezzo
Condividi
Facebook
Linkedin
Whatsapp
Vedi azioni
Stampa
Invia
Tipologia
Concessioni
INDICE DELLA PAGINA
Tipologia
Termine presentazione
Documentazione a corredo
Data dell'esito
Tipologia
Concessioni
Termine presentazione
23/06/2021 11:00
Documentazione a corredo
Documentazione a corredo
Attachment
Size
Bando
171.47 KB
Allegato 1 istanza di partecipazione
79.18 KB
Allegato 2 offerta economica
77.2 KB
piazza Edo Gori 1 vista esterno
120.33 KB
Piazza Edo Gori 1 planimetria
1.25 MB
Piazza Edo Gori 2 vista esterno
1.29 MB
Piazza Edo Gori 2 planimetria
1.21 MB
Via Ricasoli vista esterno
135.3 KB
Via Ricasoli planimetria
757.48 KB
Via Ricasoli planimetria interrato
440.96 KB
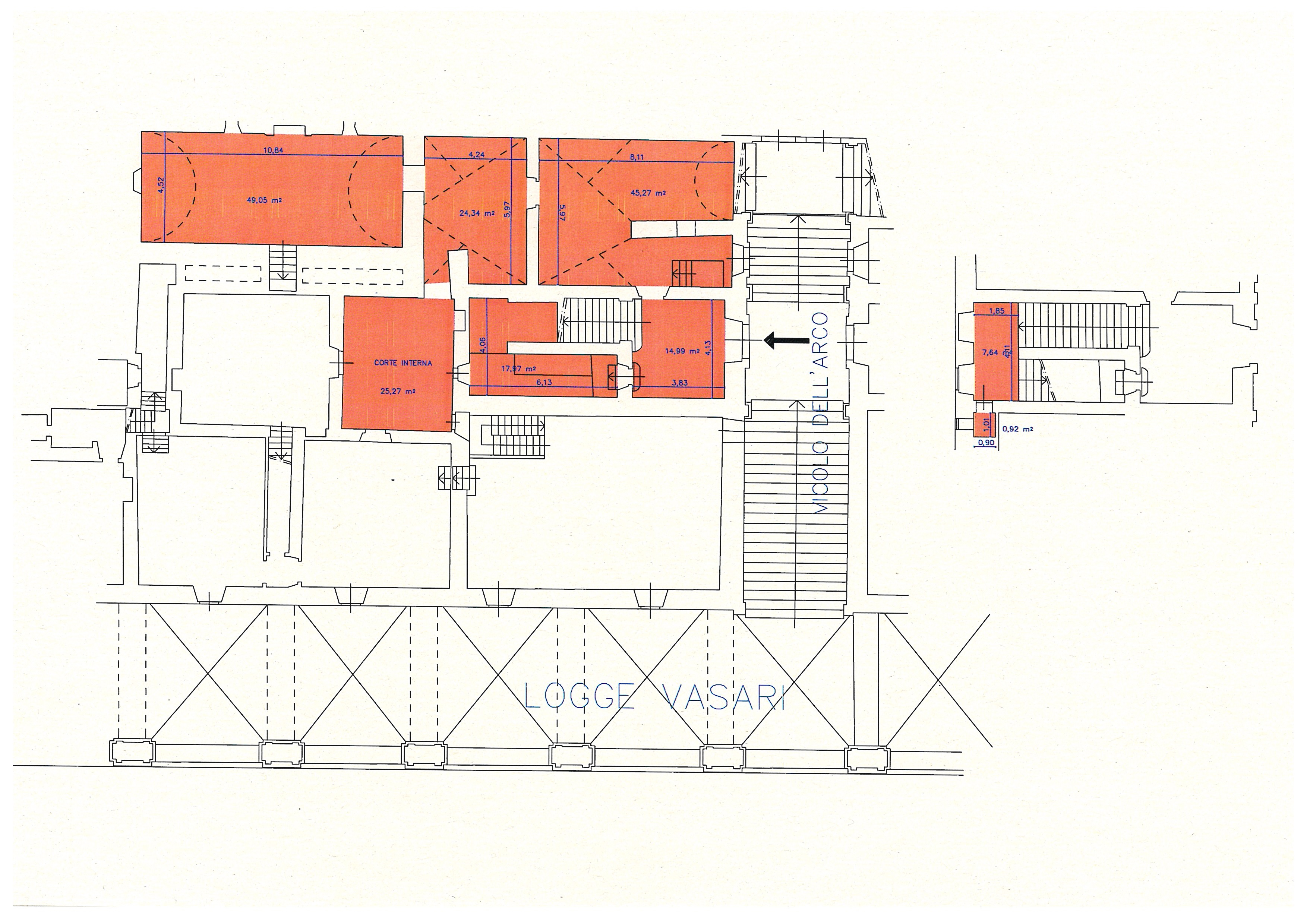
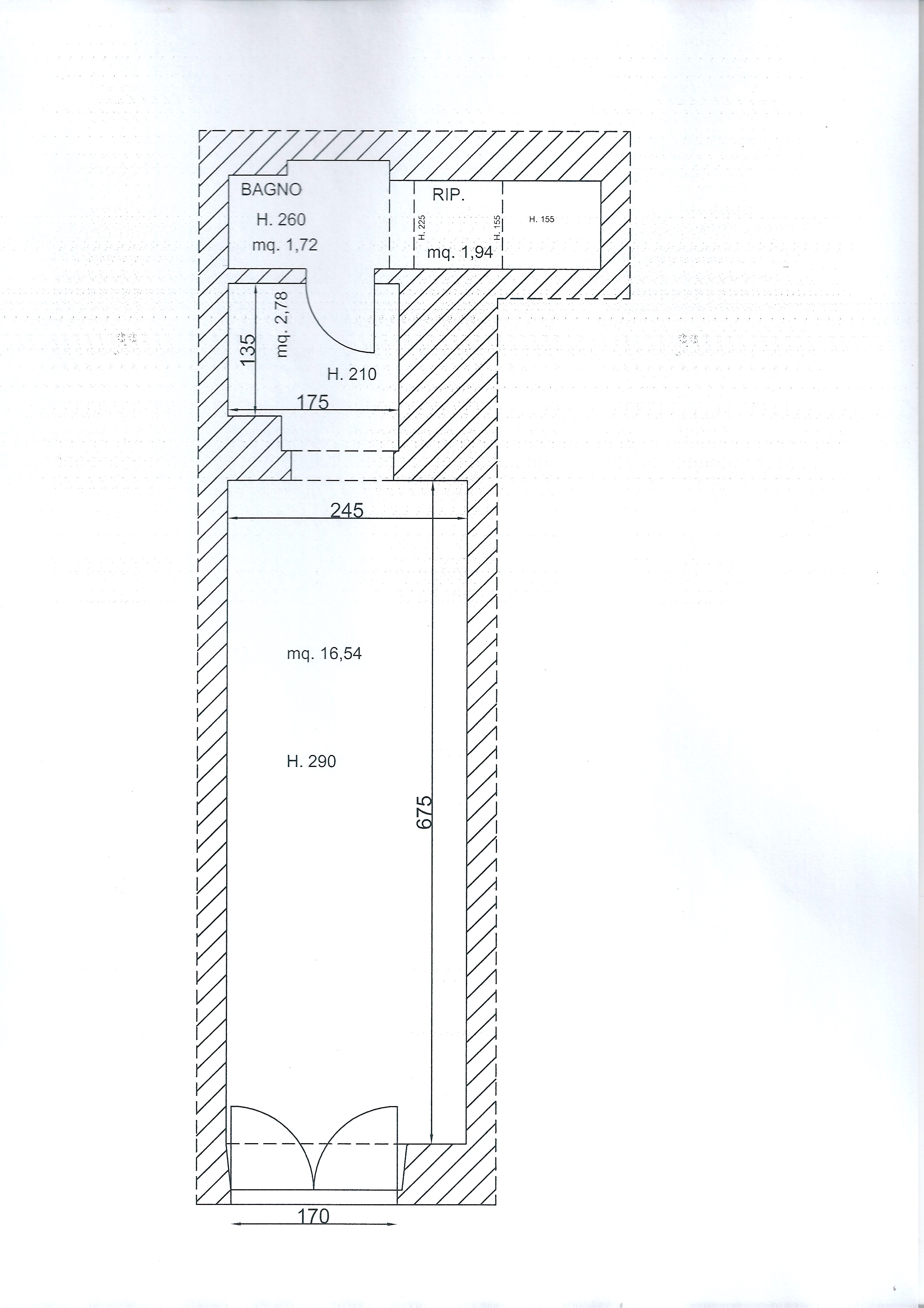
Vicolo dell‘Arco vista esterno
599.42 KB
Vicolo dell‘Arco planimetria
1.52 MB
Chiosco Viale Signorelli vista esterno
138.44 KB
Chiosco viale Signorelli planimetria
296.8 KB
San Lorentino 58 vista esterno
149.81 KB
San Lorentino 58 vista interno
82.49 KB
San Lorentino 58 vista interno
48.43 KB
San Lorentino 58 planimetria
809.42 KB
Chiosco Parco del Prato vista esterno
1.47 MB
Chiosco Parco del Prato planimetria
1.29 MB
Casina del Prato vista esterno
1.36 MB
Casina del Prato planimetria
1.06 MB
Data dell'esito
01/09/2021 12:00
Quanto sono chiare le informazioni su questa pagina?
Valuta da 1 a 5 stelle la pagina
Valuta 5 stelle su 5
Valuta 4 stelle su 5
Valuta 3 stelle su 5
Valuta 2 stelle su 5
Valuta 1 stelle su 5
Quali sono stati gli aspetti che hai preferito?
1/2
Le indicazioni erano chiare
Le indicazioni erano complete
Capivo sempre che stavo procedendo correttamente
Non ho avuto problemi tecnici
Altro
Dove hai incontrato le maggiori difficoltà?
1/2
A volte le indicazioni non erano chiare
A volte le indicazioni non erano complete
A volte non capivo se stavo procedendo correttamente
Ho avuto problemi tecnici
Altro
Vuoi aggiungere altri dettagli?
2/2
Dettaglio
Inserire massimo 200 caratteri
Indietro
Avanti
Contatta il Comune di Arezzo
Leggi le domande frequenti
Richiedi assistenza
Tel: 05753770
Prenota appuntamento
Problemi in città
Segnalazioni online
Segnala disservizio via mail
Polizia Municipale
Cerca
Cerca nel sito
Cerca
FORSE STAVI CERCANDO